Υπογράφτηκε από τον Δήμαρχο Κυθήρων, Ευστράτιο Χαρχαλάκη, η σύμβαση με την ανάδοχο εταιρεία «ΗΓΗΤΩΡ ΑΤΕ» για την εκτέλεση του έργου «ΣΥΝΟΛΙΚΗ ΑΝΑΠΛΑΣΗ ΟΙΚΙΣΜΟΥ ΑΒΛΕΜΩΝΑ» προϋπολογισμού μελέτης 4.000.000,00€ (συμπεριλαμβανομένου Φ.Π.Α.) που χρηματοδοτείται εξολοκλήρου με πόρους του Ταμείου Ανάκαμψης και Ανθεκτικότητας «ΕΛΛΑΔΑ 2.0».
Το έργο αφορά στη βιοκλιματική ανάπλαση του οικισμού Αβλέμωνα Κυθήρων, στην ανάδειξη του φυσικού του κάλλους και την αποκατάσταση και ενίσχυση των υφιστάμενων υποδομών.
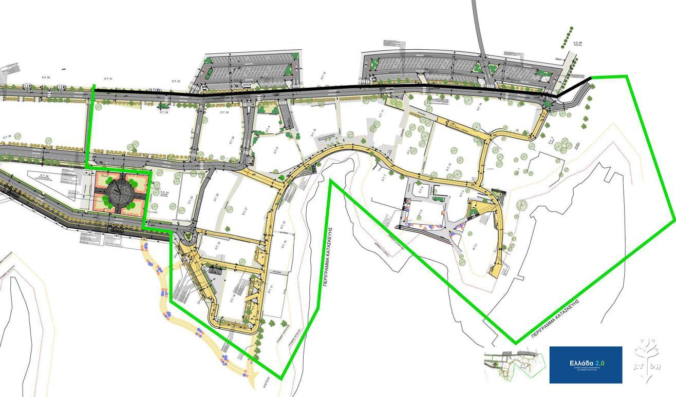
Το κύριο αντικείμενο του έργου αφορά στη διαμόρφωση χώρων περιπάτου και αναψυχής αλλά και στην αισθητική και λειτουργική αναβάθμιση του οικισμού, σε αρμονία με υφιστάμενες κατασκευές και με σεβασμό στο ιδιαίτερο μορφολογικό ύφος των Κυθήρων. Στοιχεία που λειτουργούν ήδη ως τοπόσημα, όπως το Καστέλο και οι παραλιακές διαμορφώσεις περιπάτου, ενώνονται με τις νέες. Δημιουργούνται ζώνες κίνησης ποδηλάτου, υποδομές για φόρτιση ηλεκτρικών οχημάτων καθώς και χώροι στάθμευσης οχημάτων. Πιο συγκεκριμένα, στο φυσικό αντικείμενο του έργου, περιλαμβάνονται:
- Αδιαμόρφωτη σήμερα έκταση 17.190τ.μ., Νότια και Ανατολικά του πυκνοδομημένου ιστού του οικισμού με έμφαση σε όλο το παραλιακό μέτωπο του Αβλέμωνα, με διαμορφώσεις χώρων αναψυχής και περιπάτου.
- Οδοποιία, πεζοδρόμηση και ηλεκτροφωτισμό κυρίως Νότια και Ανατολικά του πυκνοδομημένου ιστού του οικισμού με έμφαση σε όλο το παραλιακό μέτωπο του Αβλέμωνα.
Η μελέτη περιέχει όλες τις απαραίτητες προβλέψεις (ήπιες κλίσεις, ράμπες, οδηγό όδευσης ατόμων με προβλήματα όρασης) για αύξηση της προσβασιμότητας στην περιοχή παρέμβασης από άτομα με ειδικές ανάγκες, ηλικιωμένους και παιδιά, με σκοπό την άνετη και ασφαλή μετακίνησή τους στους κοινόχρηστους χώρους.
Οι προβλεπόμενες εργασίες ανάπλασης αφορούν:
- Διαμόρφωση ζωνών κίνησης πεζών – ποδηλάτων
- Διαμόρφωση κυκλοφορίας οχημάτων
- Διαμόρφωση χώρων στάθμευσης
- Διαμόρφωση σημείων ανάπαυσης με πέργκολες
- Φύτευση
- Μπάρες διακοπής κυκλοφορίας
- Τοποθέτηση κάδων απορριμμάτων και συστημάτων υπόγειων κάδων με σύστημα μηχανισμού ανύψωσης και εφαρμογή παρακολούθησης πληρότητας
- Τοποθέτηση σταθμών ασφάλισης δίκυκλων – μπάρες ποδηλάτων και φόρτισης ηλεκτρικών ποδηλάτων
- Τοποθέτηση σταθμών φόρτισης ηλεκτρικών οχημάτων
- Υποδομές Ηλεκτροφωτισμού και υπογειοποιήσεις δικτύων ΟΚΩ
- Πλήρη αστικό εξοπλισμό
- Νέα δίκτυα ύδρευσης
Το έργο έχει ενταχθεί στο πρόγραμμα «ΠΑΡΕΜΒΑΣΕΙΣ ΜΕ ΣΤΟΧΟ ΤΗΝ ΒΕΛΤΙΩΣΗ ΤΟΥ ΔΗΜΟΣΙΟΥ ΧΩΡΟΥ» του Υπουργείου Περιβάλλοντος και Ενέργειας που χρηματοδοτείται από το Ευρωπαϊκό Ταμείο Ανάκαμψης και Ανθεκτικότητας, γεγονός εξαιρετικά σημαντικό καθώς η συγκεκριμένη πρόσκληση χρηματοδότησης ήταν ιδιαιτέρως ανταγωνιστική και η επιτυχία ήρθε να αποδείξει την ορθότητα των ενεργειών του Δήμου που έχει δώσει έμφαση στον συστηματικό σχεδιασμό και την ωρίμανση μεγάλων έργων.
Η συνεργασία μεταξύ των υπηρεσιών του Δήμου, του Τμήματος Τεχνικής Υποστήριξης Νησιωτικών Δήμων της Περιφέρειας Αττικής και εξωτερικών συνεργατών του Δήμου τόσο στην αρχική φάση του σχεδιασμού και της διεκδίκησης χρηματοδοτήσεων, όσο και κατά την διαγωνιστική διαδικασία και την εκτέλεση των έργων είναι αγαστή και αποτελεσματική, αποτελώντας εγγύηση για την υλοποίηση έργων υψηλής ποιότητας και χρηστικότητας και στη νέα δημοτική περίοδο 2024-2028.












